安詩曼電器
手機:133-6050-3273
微信:133-6050-3273
地址:廣東深圳坪山區青松西路8號鴻合科技園

即使你看不見它們,但是你的家里依舊充滿了過敏原!室內空氣質量問題的常見來源包括霉菌,塵螨,蟑螂,花粉,寵物和干燥空氣。我們人類具有很強的適應力,但是長時間暴露于室內空氣污染和高濃度過敏原后,最終會獲得我們最好的效果。幸運的是,如果您采取常識性步驟,包括正確監測并保持濕度和溫度,可以幫助減少過敏癥狀。...
了解詳情
大數據時代的到來,讓數據機房變得非常重要。類似BTA這樣的巨型互聯網企業,不但需要承擔自己公司的數據,還需要承擔其他用戶上傳的數據,這就需要大量的服務器來保證數據運行正常,因此就需要專業的機房來存放服務器、交換機等網絡設備,那么這些設備安全運行就成為一個非常重要的問題。讓數據機房的設備正常運行,機房...
了解詳情
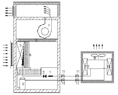
在使用工業除濕器時,我們常常會遇到一寫問題(Emerson),如不除濕、噪音突然增大等故障,那么我們該如何檢修呢?一、除濕機不除濕故障的檢修順序:1.通風系統(system)故障:①進風柵與出風柵:A.人為損壞或老化龜裂(jūnlìe);B.進風或出風嚴重受阻;②空氣過濾網(Filtermesh):...
了解詳情
在保持健康的前提下對寵物和兒童的照顧是一個挑戰,但是有一些方法可以挽回您的時間并保持健康!正確的家用電器可以幫助您保持健康,并給您帶來更多寶貴的時間,以花在您喜歡的事物和人們身上。增加的便利可能值得您進行初始投資,并為您和您的家人提供更健康,更輕松的生活方式。就像他們說的那樣,家是心靈的所在,但壓力...
了解詳情
什么是地下室除濕機?這個問題的答案并不像你想象的那樣有趣或令人興奮。地下室除濕機只是一個普通的獨立式便攜式除濕機,但它配備了某些特征和功能,能夠在地下室更有效地運行。這并不是說地下室除濕機只能在地下室有效地工作。它可以在地面上工作,因為它在地下工作。然而,這種說法的反面并非如此。許多在地面以上工作的...
了解詳情
近期全國疫情在逐漸下降,諸多企業開始復工,一切都在回暖,包括天氣,因為春天來了。春天是萬物復蘇的季節,空氣濕度逐漸升高,春天成為各種細菌最活躍的時候,感冒、發燒等都易在春季發生。細菌的生存需要一定的溫度和濕度,而大多細菌不耐高溫,20℃左右是最適宜生長,所以春天也就如同細菌生存與繁衍的溫室暖床。對于...
了解詳情
檢測車間濕度問題釀造是一個復雜的過程,往往涉及到新舊傳統和技術的不尋常混合。在釀造中使用的許多工藝中,溫度和濕度都很高。而在其他許多溫度下,溫度一定很低。大量空氣濕度和大量冷表面(如管道,罐體,墻壁,窗戶,瓶子和桶)的這種組合,也是解決凝結,霉菌,真菌和細菌生長問題的強大方法。你可以做什么所有這些都...
了解詳情
獵鷹是掠食性的鳥類,具有卓越的視力和潛水速度。猛禽象征著勇敢,獵鷹的成本從330美元到33萬美元不等。價格取決于它的實力,年齡,視覺清晰度和速度。據信阿拉伯人在過去的兩千年里與獵鷹隊一起獵殺過。面對滅絕,獵鷹現在是一個瀕危物種。阿聯酋政府已經啟動了許多項目來支持阿拉伯鷹狩獵,其中包括養殖純種的獵鷹獵...
了解詳情
獵鷹是掠食性的鳥類,具有卓越的視力和潛水速度。猛禽象征著勇敢,獵鷹的成本從330美元到33萬美元不等。價格取決于它的實力,年齡,視覺清晰度和速度。據信阿拉伯人在過去的兩千年里與獵鷹隊一起獵殺過。面對滅絕,獵鷹現在是一個瀕危物種。阿聯酋政府已經啟動了許多項目來支持阿拉伯鷹狩獵,其中包括養殖純種的獵鷹獵...
了解詳情
發動機試驗室的濕度控制發動機測試室是開發和測試汽車發動機的設施。高濕度會影響發動機測試設施的運行。不受控濕度的影響不受控制的溫度和濕度會影響:傳感器和測量工具的功能健康危害不受控濕度的原因汽車發動機排放NO,NO2,N2O4,SO2,CO,CO2和殘余碳氫化合物。考慮到這些氣體可能造成的健康危害,有...
了解詳情
安全玻璃裝置的濕度控制“安全玻璃”對汽車和建筑行業至關重要。安全玻璃是一類經劇烈振動或撞擊不破碎,即使破碎也不易傷人的玻璃。用于汽車、飛機和特種建筑物的門窗等。使用特殊的薄透明塑料薄膜作為玻璃層之間的粘合劑,在發生破裂時將玻璃粉碎在一起。這種薄膜具有吸濕性,并且在儲存期間,制造之前和粘合過程中趨于吸...
了解詳情
潮濕的環境不僅使人感到不舒服,而且還有各種疾病,如各種關節炎、腰腿痛、支氣管炎等。有效地處理家庭潮濕的環境不僅有利于身心健康,而且可以增加生活舒適度,增加家具和家用電器的使用壽命。夏季氣候潮濕,尤其是雨季的南部。濕度經常影響家用電器的使用,如電腦電視不能打開,或家具滲水。在潮濕的環境中,衣服或食物很...
了解詳情
低的室內濕度會對身體產生各種有害影響。從你的皮膚干燥到喉嚨發癢,沒有人想在自己的家中感到不舒服。幸運的是,有一種方法可以糾正這種情況。轉向加濕器,并安全地將水分添加到室內空氣中。有些甚至使用全屋加濕器來解決室內濕度過低的問題清理那些被忽視的區域在我們的家中有像廚房和衛生間水槽那樣的地方,它們是霉菌和...
了解詳情
配電柜和電氣控制柜采用防潮除濕機。在整個電力系統的運行中,變電站、配電室、開閉、供電室等電力設施的問題之一,特別是在雨季和雨季和雨季,配電柜中的開關設備。電氣設備是濕的。控制柜等設備,潮濕空氣的侵入導致金屬體的腐蝕,縮短設備的使用壽命。此外,密封箱中的絕緣距離是緊湊的。如果空氣太潮濕,它會引起冷凝。...
了解詳情
對于大多數葡萄酒愛好者來說,他們的葡萄酒收藏是一項珍貴的投資,你根本無法投入一美元。在保護和保養方面,您的葡萄酒類似于汽車。它們需要維護才能獲得最佳的享受和性能。即使您家中有空調,酒窖的冷卻裝置仍然很重要。酒窖冷卻裝置如何工作?一個酒窖冷卻裝置將有助于保持濕度的恒定水平,當談到創建你的地窖一個理想的...
了解詳情
除濕在廢物和淡水處理設施的管理維護中起關鍵作用。金屬表面如保持,處理和過濾罐,管道和泵室設備暴露于冷水中,這些冷水通常會使其表面溫度低于室內露點溫度。發生這種情況時,這些表面會產生濕氣,導致生銹和腐蝕。位于地面以上的淡水處理廠中,來自地面的水可能會像50華氏度那樣涼爽。在較冷的月份,從湖泊或河流中取...
了解詳情
不管是南方地區還是北方地區,很多配電房環境都普遍存著潮濕問題。特別是一些建在地下室的配電房,一到下雨天就更為潮濕了。大量的潮濕空氣通過地下電纜層或室內電纜溝、通氣格柵等縫隙進行室內,空氣濕度逐漸偏高,往往會高達80%RH以上。而配電房里的配電柜相對密閉差,潮濕空氣也極易進入柜內產生凝露現象。在電氣工...
了解詳情
清潔對于食品加工或儲存設施來說是最重要的。溫度校準也有助于保持食品安全并預防食源性疾病。然而,在食品加工或儲存設施中,清潔度至關重要,但這還不夠。如果您從事食品加工業務,則必須了解維護良好的環境條件和溫度控制以維持食品質量同樣重要。溫度標準也有助于保持食品安全并預防食源性疾病。3種方式濕度和濕度影響...
了解詳情
調溫型除濕機適合高溫環境中使用,在一些溫度變化比較大,溫度比較高的場合下,使用調溫型除濕機的話,對于降低環境內溫度和濕度會有比較顯著和良好的效果,給我們的生產和工作帶來的極大的方便。調溫型除濕機的濕裝置由除濕蛋和承座組成。所謂除濕蛋,就是一種多孔的,透氣較好的的陶瓷外殼,除濕蛋的里面是一個容器,里面...
了解詳情
蔬菜成品最好的時候就是早晨或者有霧的時候,因為這個時候蔬菜都吸收了足量的水分,看起來蒼翠欲滴。現今,廣大消費者習慣于到超市購買所需物品。由于保鮮技術等原因,使超市蔬菜無淪從外觀上還是新鮮程度上都遠遠不及農貿市場,降低了市場競爭能力。失水會造成蔬菜的失重和失鮮,降低耐貯性和抗病性,加速了蔬菜腐爛。蔬菜...
了解詳情